(778) 227-9000 beckyzhou.hill@gmail.com

16 16561 17a Avenue Surrey, British Columbia V3Z 1J3

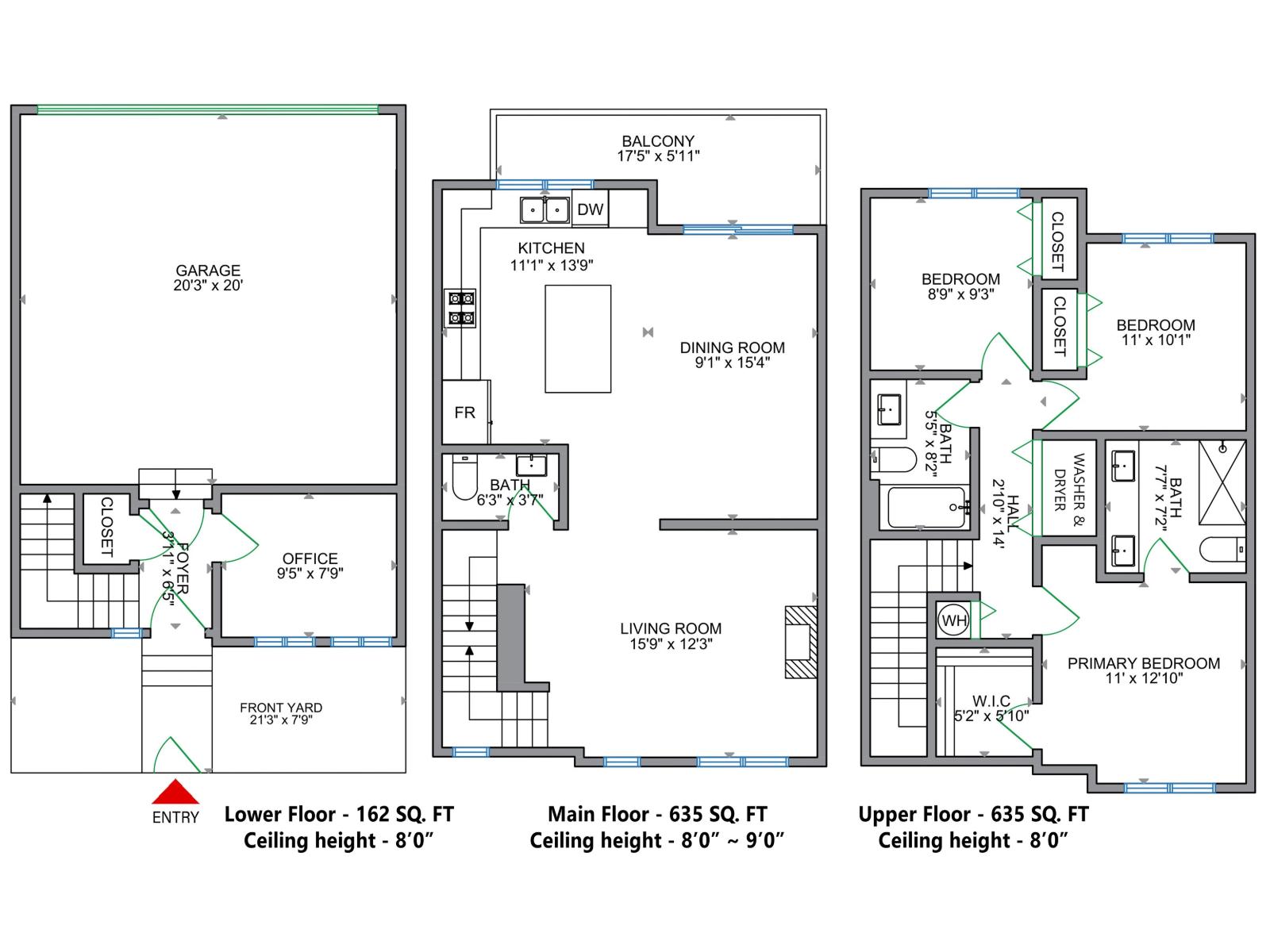
3 Bedroom 3 Bathroom 1,454 ft2
3 Level Fireplace Air Conditioned Forced Air Garden Area

$888,500

Maintenance,

$235.97 Monthly

Welcome to this rarely available outside unit at Hazelwood. This pristinely kept 3 bedroom and large office, feels like a detached home located on the quiet side of the complex. Easy access to street parking from your private/enclosed front yard and front door, looking out to the unobstructed green space. The main living area features a very efficient floorplan with no wasted space. That opens up to the dining and kitchen area boasting high end appliances and designer cabinetry. To top off the luxury checklist, this unit also features a side by side double garage with epoxied floors and central air-conditioning. Bonus! State of the art amenities with VERY LOW strata fees! OPEN HOUSE SATURDAY NOV 8 12-3pm & SUNDAY NOV 9 FROM 2-4pm (id:62739)

Property Details

MLS® Number R3064220
Property Type Single Family
Neigbourhood Grandview
Community Features Pets Allowed With Restrictions, Rentals Allowed With Restrictions
Parking Space Total 2
View Type View

Building

Bathroom Total 3
Bedrooms Total 3
Age 3 Years
Amenities Air Conditioning, Clubhouse, Exercise Centre, Laundry - In Suite
Appliances Dryer, Washer, Dishwasher, Microwave, Refrigerator, Stove
Architectural Style 3 Level
Basement Development Unknown
Basement Features Unknown
Basement Type None (unknown)
Construction Style Attachment Attached
Cooling Type Air Conditioned
Fireplace Present Yes
Fireplace Total 1
Heating Type Forced Air
Size Interior 1,454 Ft2
Type Row / Townhouse
Utility Water Municipal Water

Parking

Garage

Land

Acreage No
Landscape Features Garden Area

Utilities

Electricity Available
Water Available

https://www.realtor.ca/real-estate/29062462/16-16561-17a-avenue-surrey

Contact Us

Contact us for more information

Generating Captcha