(778) 227-9000 beckyzhou.hill@gmail.com

106 13819 232 Street Maple Ridge, British Columbia V4R 0C7

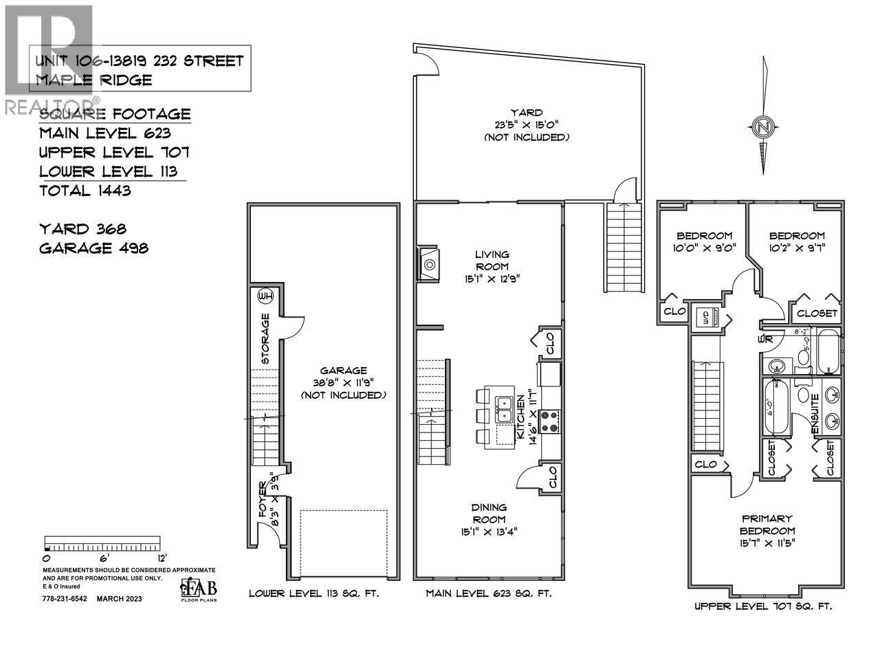
3 Bedroom 2 Bathroom 1,443 ft2
Baseboard Heaters

$848,000

Maintenance,

$368 Monthly

Rarely available on the market, this charming, bright, and spacious End Unit in beautiful Brighton by Portrait Homes is a true gem. In a family-oriented area next to greenspace with southwest exposure, it offers privacy, sun, and an oversized backyard paradise perfect for family fun. Fig tree, banana tree, organic kale, and herbs are all growing ready to whip up a fresh garden salad! Shows like new with 3 bedrooms, his and hers closets, 9-ft ceilings on the main, and granite counters with island. Includes a double tandem garage with storage, new appliances & hot water tank (2024), and a cozy, modern color scheme. Spectacular strata with low fees, minutes from WildPlay Elements Park, Maple Ridge Park, and local schools. Endless outdoor fun and adventure-be part of the best of Silver Valley. (id:62739)

Property Details

MLS® Number R3028765
Property Type Single Family
Amenities Near By Playground, Golf Course, Shopping
Community Features Pets Allowed
Features Cul-de-sac
Parking Space Total 2
View Type View

Building

Bathroom Total 2
Bedrooms Total 3
Amenities Laundry - In Suite
Appliances All, Intercom
Constructed Date 2011
Fire Protection Smoke Detectors, Sprinkler System-fire
Heating Fuel Electric
Heating Type Baseboard Heaters
Size Interior 1,443 Ft2
Type Row / Townhouse

Parking

Tandem

Land

Acreage No
Land Amenities Playground, Golf Course, Shopping

https://www.realtor.ca/real-estate/28629801/106-13819-232-street-maple-ridge

Contact Us

Contact us for more information

Generating Captcha