(778) 227-9000 beckyzhou.hill@gmail.com

108 1940 Centennial Way Squamish, British Columbia V0N 3G0

10,038 ft2
Acreage

$5,972,610

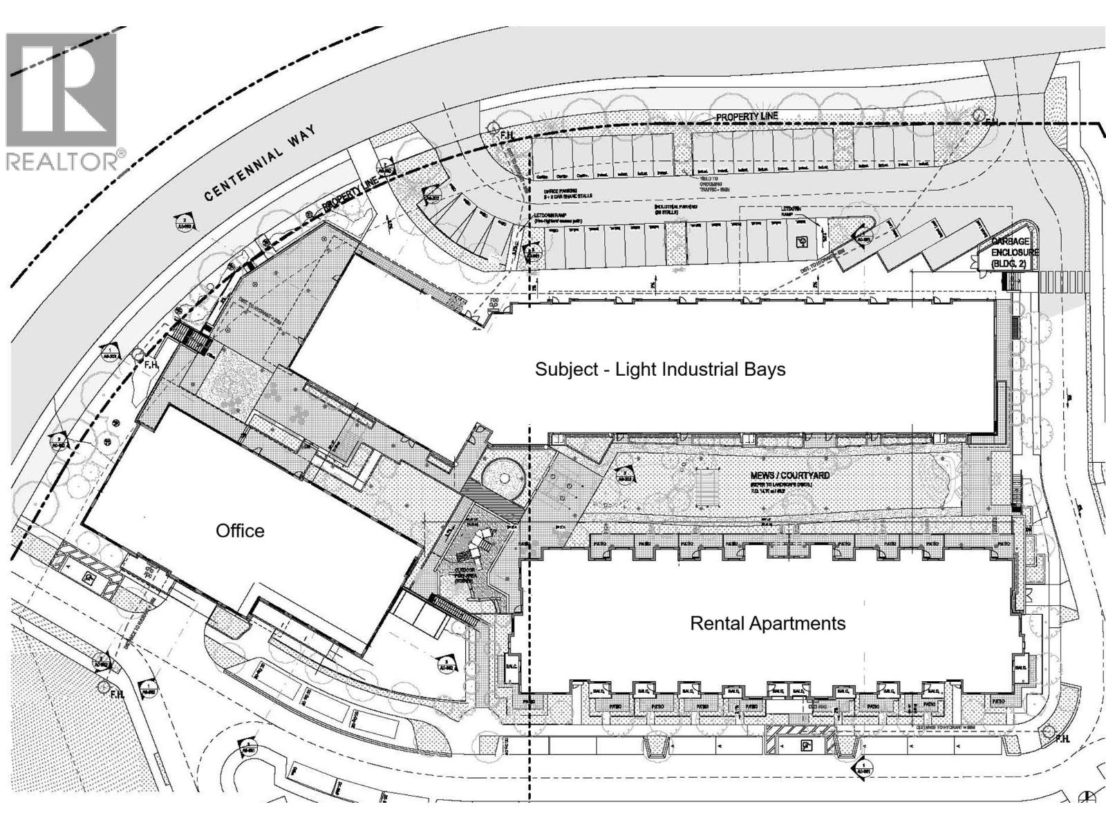
Rare opportunity to own quality light industrial space by Anthem Properties at Mountain Village in Squamish, BC . This centrally located industrial strata complex has convenient access off Highway 99 with excellent loading, circulation and parking. All units offer substantial mountain views and the project abuts the mixed use Mountain Village project with customers and amenities in the neighbourhood. A total of 10 well appointed units starting at 2,246 sq. ft. that can be assembled to up to 10,000 sq. ft. Summer 2026 completion. Broad range of uses permitted in the Light Industrial zone (CD90) . Call for more info. (id:62739)

Property Details

MLS® Number C8076045
Property Type Industrial

Building

Constructed Date 2026
Size Interior 10,038 Ft2

Land

Acreage Yes
Size Irregular 65000
Size Total 65000 Sqft
Size Total Text 65000 Sqft
Zoning Description Cd-90

Utilities

Cable Available
Electricity Available
Natural Gas Available
Telephone Available

https://www.realtor.ca/real-estate/29343137/108-1940-centennial-way-squamish

Contact Us

Contact us for more information

Generating Captcha